SHDYQZ單線卸壓式油氣供應站
| 一、結構特點及應用范圍 | ||||||||||
| SHDYQZ型單線卸壓式油-氣供應站,是集潤滑油液儲存、增壓過濾單線供送、壓縮空氣處理和PLC電氣控制于一體的機電儀一體化產品,適用于單線卸壓式油氣潤骨系統中。 | ||||||||||
| 二、性能參數 | ||||||||||
|
||||||||||
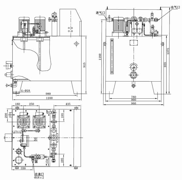
| 三、外形圖 | ||||||||||
|
||||||||||
| 四、原理圖 | ||||||||||
|
||||||||||
| 五、型號說明 | ||||||||||
|
||||||||||
| 六、功能說明 | ||||||||||
| 該站主要由油箱(帶電加熱器、液位計、電接點溫度計、空氣濾清器、液位控制器)、兩臺高壓油泵裝置(一備一用)、溢流閥、二位二通電磁閥、過濾器、單向閥、壓力表、閥門、壓力控制器及氣動三聯件和PLC電氣控制箱組成。在電動機的牽引下油泵工作,從油箱內吸入潤滑油加壓排出,途徑單向閥和過濾器后向系統管線供送。正常工作時,一臺高壓油泵常開工作,另一臺備用,可通過電氣轉換開關來選擇使用,并可通過按鈕開關人工啟動和停止油泵。PLC電氣控制箱對油氣系統實行程序化全自動控制,還可向主控室提供系統“運行”、“停止”、“故障”等遠程信號接口。 | ||||||||||
| 七、使用要領 | ||||||||||
|
1、油-氣供應站應安裝在灰塵少、振動小、通風干燥、環境溫度適中,且便于調整、檢查、維護和方便補油的地方。 2、油泵電機的旋向是單向的,使用時必須按電機外的旋向牌規定的旋向接線使用。 3、油箱油位低時應及時從空氣濾清器的過濾網處加入同牌號的潤滑油,油位到達低油位時電氣連鎖油泵不能啟動,嚴禁人工在無油或低位以下時啟動油泵工作。 4、空氣處理單元的進氣接口必須與工廠壓縮空氣(允許使用氮氣)供氣管線相接,決不允許使用其它介質的氣體,以免發生安全事故。 5、油-氣供應站正常環境情況下工作,油箱電加熱一般不投入使用,只有在冬季北方地區氣溫偏低情況下,為適當降低油的粘度才啟動電加熱對箱內油液進行加熱。 6、油過濾器差壓信號報警時,維護人員應及時清洗或更換濾芯。 7、油泵出口處的安全調壓閥,無故不允許調節,決不允許調高至公稱壓力值以上使用。 8、PLC電氣控制箱經調試工作正常后,無故不許隨意修改或調整程序。 |
上一個: SHWYQZ-B型油氣供應站 下一個: 油氣智能潤滑系統
