DXZ系列電動干油站
|
||||||||||||||||||||||||||||||||||||||||||||||
|
二、技術參數
|
||||||||||||||||||||||||||||||||||||||||||||||
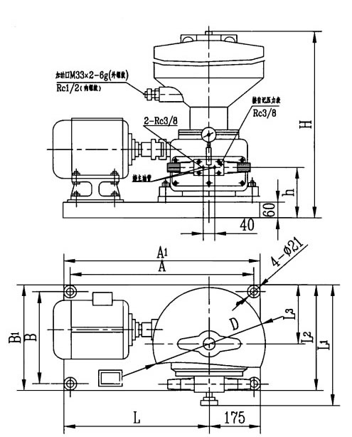
| 三、 外形尺寸 | ||||||||||||||||||||||||||||||||||||||||||||||
|
||||||||||||||||||||||||||||||||||||||||||||||
|
||||||||||||||||||||||||||||||||||||||||||||||
| 四、型號標注說明 | ||||||||||||||||||||||||||||||||||||||||||||||
|
||||||||||||||||||||||||||||||||||||||||||||||
| 五、使用說明 | ||||||||||||||||||||||||||||||||||||||||||||||
|
1、該系列電動干油站應安裝在環境溫度合適,灰塵少,便于調整、檢查、維修和拆洗及補脂方便的地方。 2、該系列電動干油站應盡可能布置在系統的中心位置,縮短系統配管長度,保持最低壓力降,使泵能產生足以克服潤滑點背壓的壓力。 3、使用前必須先向干油站減速箱體內加入50#機械油至油標規定液面。 4、向貯油器內補脂必須使用DJB-200型電動加油泵從貯油器的加油器的加油口加入,在貯油器內無潤滑脂有情況下嚴禁啟動電動泵運轉。 5、電磁換向閥上留有連接接口為Rc3/8的自己壓力表接口,如不需要時可用Rc3/8螺塞堵死。 6、電磁換向閥上的調壓閥,可以在0~10MPa范圍內任意調節,在使用時不允許超過泵的公稱壓力(10MPa)。 7、干油站初用二個月必須拆下電磁閥二端電磁鐵檢查接合面處有否潤滑從頂桿密封處滲漏出,如有滲漏應及時更換密封件以免 燒壞電磁鐵,以后注意,經常檢查。 8、該系列電動干油站為室內安裝型,在室外或環境惡劣的場合使用時,必須采取防護措施。 |
||||||||||||||||||||||||||||||||||||||||||||||
上一個: DB、DBZ型單線干油泵及裝置 下一個:暫無
